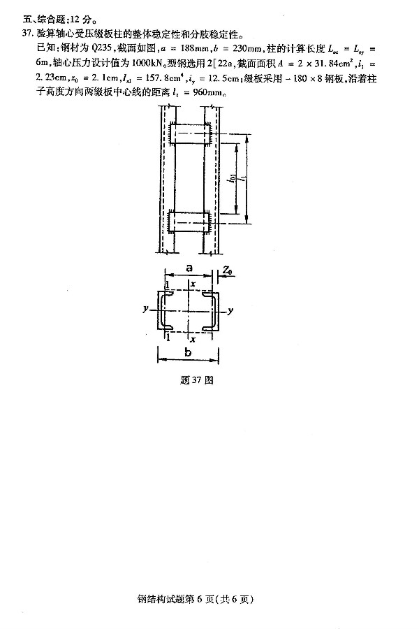
2019年4月自考02442钢结构真题
立即购买
《自考视频课程》名师讲解,轻松易懂,助您轻松上岸!低至199元/科!
本文标签:江西自考 钢结构 2019年4月自考02442钢结构真题
转载请注明:文章转载自(http://www.zikao.jx.cn)
-
上一篇:暂无
《江西自考网》免责声明:
1、由于各方面情况的调整与变化,本网提供的考试信息仅供参考,考试信息以省考试院及院校官方发布的信息为准。
2、本网信息来源为其他媒体的稿件转载,免费转载出于非商业性学习目的,版权归原作者所有,如有内容与版权问题等请与本站联系。联系邮箱:812379481@qq.com
相关《2019年4月自考02442钢结构真题》的文章















